飲食店の店舗設計と内装工事と厨房設計施工
飲食店の店舗設計と内装工事と厨房設計と厨房機器のリース販売
  • トップページ
  • 厨房設計施工
  • 施工実績 ⑤
    • 施工実績 ④
    • 施工実績 ③
  • お問い合わせ
飲食店の店舗設計と内装工事と厨房設計施工
  • トップページ
  • 厨房設計施工
  • 施工実績 ⑤
    • 施工実績 ④
    • 施工実績 ③
  • お問い合わせ
  • トップページ
  • 厨房設計施工
  • 施工実績 ⑤
    • 施工実績 ④
    • 施工実績 ③
  • お問い合わせ
閉じる
  • HOME
  • 飲食店内装工事 施工実績 ⑤
  • 厨房展開図

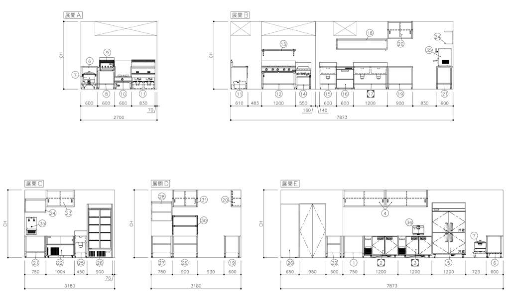
厨房展開図

業種別 施工事例

  • 飲食店内装工事 施工実績 ⑤
  • 飲食店内装工事 施工実績 ④
  • 飲食店内装工事 施工実績 ③
  • 居酒屋の内装工事と店舗設計
  • そばうどん内装工事と店舗設計
  • ラーメン店の内装工事と店舗設計
  • カフェの内装工事と店舗設計
  • 弁当食堂の内装工事と店舗設計
  • 焼肉ホルモンの内装工事

厨房機器のリース&販売

  • 食器洗浄機 リース
  • 業務用冷蔵庫 リース
  • 製氷機 リース
  • スチームコンベクション リース
  • ガスレンジ リース
  • ゆで麺機 リース
  • 寿司ロボット リース
  • のりまきメーカー リース&現金
  • おにぎりロボット リース
  • 十割そば製麺機 リース
  • 券売機 リース (月々1万円~)

工事の種類

  • フード ダクト工事
  • 厨房設計、施工
  • 家具と改装工事
  • 内装工事パートナー募集

会社案内

  • リースについて
  • サイトマップ
  • 会社案内
  • 免責事項
  • リースについて
  • サイトマップ
  • 会社案内
  • 免責事項
© 飲食店の店舗設計と内装工事と厨房設計施工